Luque, Luque, Paraguay

Gs. 284,627,160

~3,350,000 ₽ / Gs. 5,692,543/m2

Спальни

1

Ванные комнаты

1

Гараж

1

Площадь, м²

50

более

4 месяцев назад

Просмотры

433

Barrio Cerrado En Luque A Precio De Alquiler

BARRIO CERRADO EN LUQUE A PRECIO DE ALQUILER

Barrio Cerrado en Luque MIAVITA - Proyecto Lares en Desarrollo

Casa mas terreno, primera vivienda, aptp para credito Bancario Che Roga 2.0

Zona Ita Angua'a - Paso de Patria

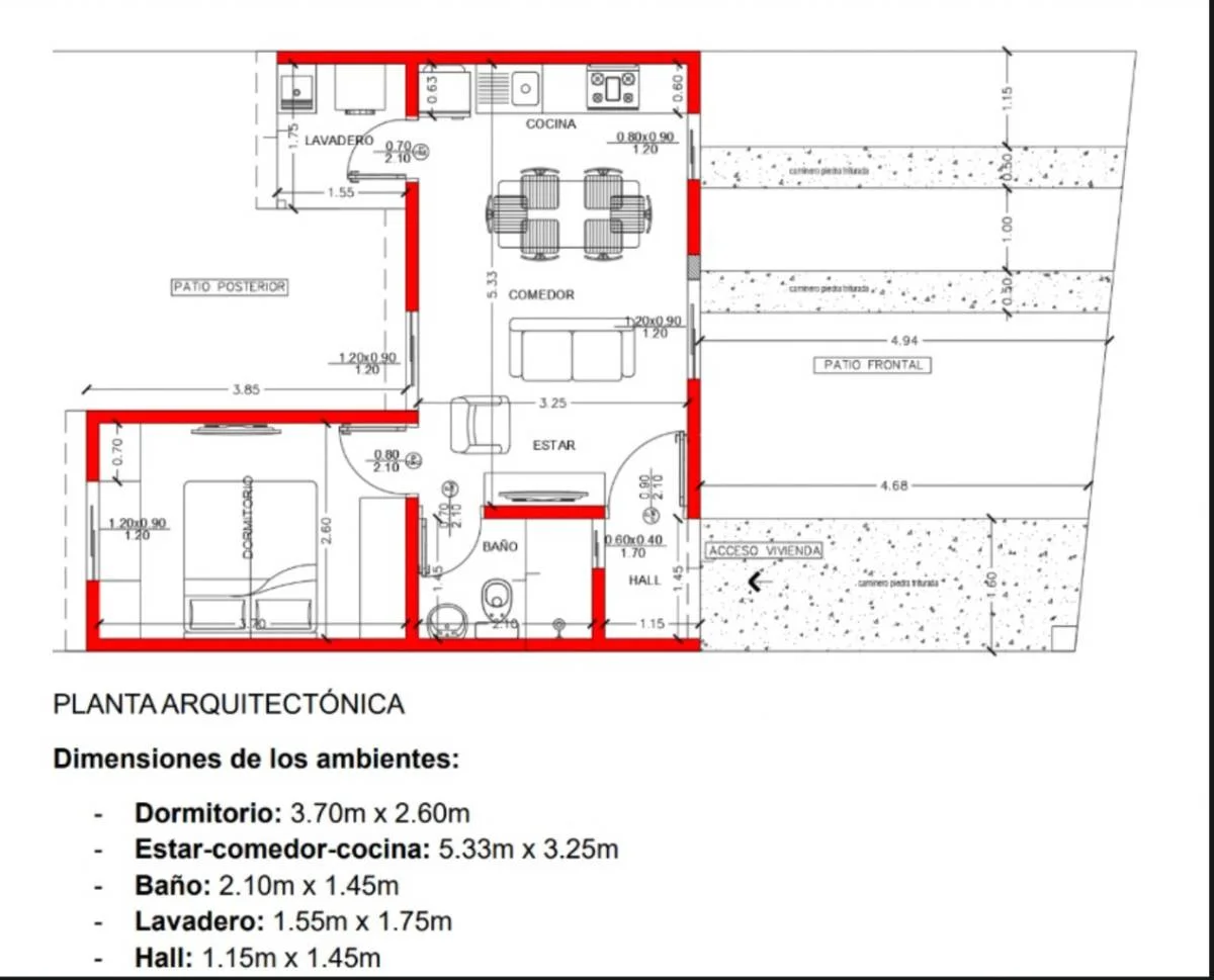
Linea fachada minimalista con patio y jardín incluidos

Superficie 127 m2, construido 50m2

Características:

-Lavadero Techado

-Estacionamiento

-Jardín delantero/trasero

-Sala,comedor y cocina integrados

-Un Bano

Acepta Créditos:

Si

Id: 40026

Характеристики

ID

Тип

Площадь, м²

Вся постройка, м²

Спальни

1250728

Продажа

50

50

1

Ванные комнаты

Гараж

Ссылка

Обновлено

1

1

I8F0D8

2025-09-15

Район

284.6м Gs.

Район

Central

Адрес

Luque, Luque, Paraguay

Удобства

Зона барбекю

Терраса

Гардеробная

Общая зона

Кондиционер

Сад

Прачечная

Дополнительные действия

Century 21 Prestigio
+595971161010
Похожие объекты
Загрузка...
Зарабатывайте деньги привлекая коллег!

Приглашайте других агентов по недвижимости и получайте 10% комиссии с каждого их продвижения.