Villa Morra, Dr. Francisco Morra & Olegario Víctor Andrade, Asunción, Paraguay

U$S 77,950

U$S 2,688/m2

Спальни

1

Ванные комнаты

1

Гараж

1

Площадь, м²

29

Год постройки

2028

Тип

Квартиры

Опубликовано

2 дня назад

Просмотры

4

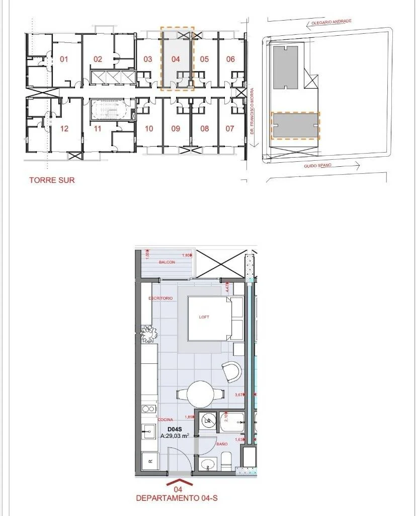
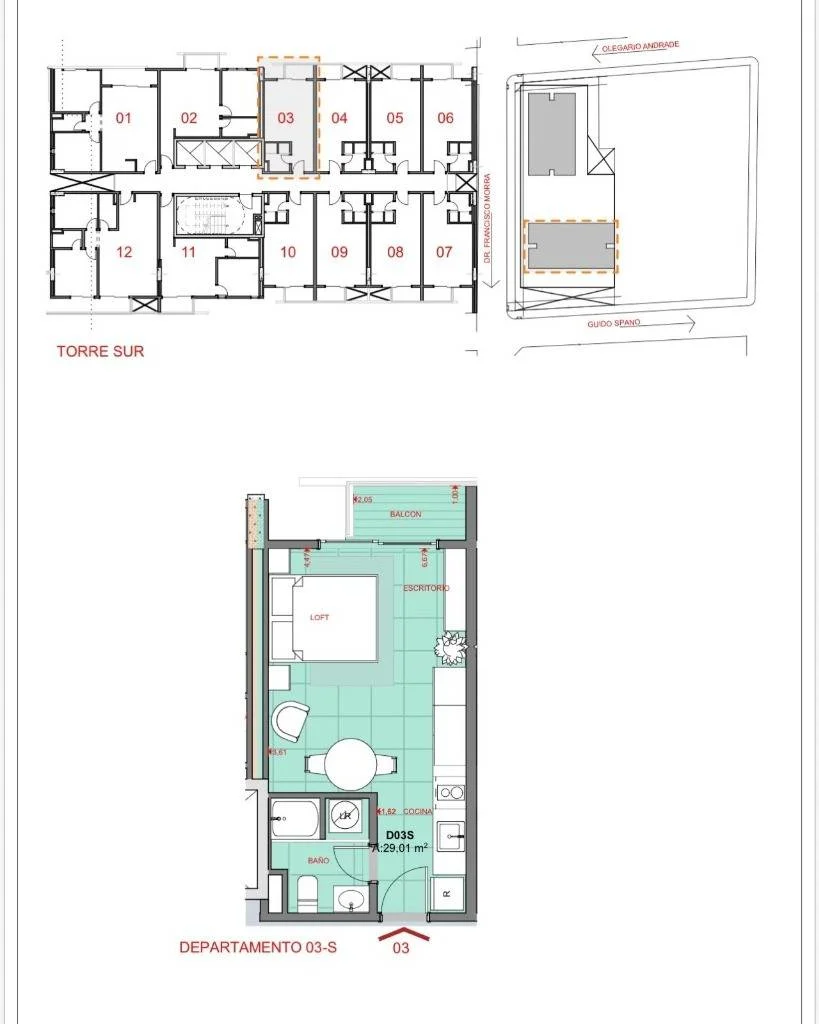
Venta Departamentos En Pozo, Edificio First Morra.

Venta Departamentos en Pozo, Edificio First Morra.

Unidad 803 S

Superficie: 29,6m2

Cuenta con:

Cocina integrada, con mueble superior e inferior.

Anafe eléctrico, filtro purificador.

Mesada de granito,

Bacha y grifería de primera calidad frío/caliente.

Sala y comedor integrados con aire acondicionado,

1 Baño.

Pisos de porcelanato,

Balcón, ventanas de piso a techo con vidrio templado y carpintería de aluminio.

Espacio para camas King Size.

1 Cochera.

Todas las unidades cuentan con artefactos de iluminación,

Cerradura electrónica con wi-fi, intercomunicador,

Portero eléctrico sistema de prevención de incendios,

Calefón, espacio para lavarropas,

Vidrios templados en todas las ventanas

El edificio cuenta con generados de energía, luces de emergencia y circuito cerrado en todos los pisos.

Inversión: USD 77.950

Financiación Propia: El 30% entrega inicial 60 % en citas y 10% con la entrega de la unidad.

Inicio de obra: Marzo 2025

Fin de Obra: Marzo 2028

Характеристики

ID

Тип

Площадь, м²

Вся постройка, м²

Спальни

1314269

Продажа

29

29

1

Ванные комнаты

Гараж

Год постройки

Ссылка

Обновлено

1

1

2028

ZC7782

2025-11-18

Район

78.0к U$S

Район

Asunción

Адрес

Villa Morra, Dr. Francisco Morra & Olegario Víctor Andrade, Asunción, Paraguay

Удобства

Зона барбекю

Терраса

Спортзал

Бассейн

Кондиционер

Дополнительные действия

Century 21 Experience
+595981100326
Похожие объекты
Загрузка...
Зарабатывайте деньги привлекая коллег!

Приглашайте других агентов по недвижимости и получайте 10% комиссии с каждого их продвижения.