Asunción, Mariscal Lopez, Asunción, Paraguay

U$S 2,800,000

U$S 1,000/m2

M² edificados

2800

Tipo de Propiedad

Terreno

hace más de

2 semanas

Vistas

76

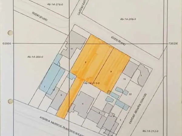
Terreno En Venta, Sobre Mcal Lopez, 2.800 M2

EN VENTA Hermosa Propiedad de 2.800 m2. sobre la Av. Mcal. López

Sobre la Av. Mcal. López y con salida a la calle Guido Spano.

FM1A hasta 4 pisos

Coef. Edificabilidad: 3

Area Edificable: 8.400 m2

Tasa Ocupación: 70%

Superficie total del terreno: 2.800 m2.

Frente sobre Avda. Mcal. López: 10 mts.

Frente sobre calle Guido Spano: 50 mts.

Superficie construida: 600m2 aprox.

Cuenta con:

Área cerrada con climatización.

Baños.

Cocina.

Déposito.

Área de servicio.

Amplio Estacionamiento.

Precio: USD. 1.000 x m2

ID: 1785

Detalles de la Propiedad

ID

Tipo de Propiedad

Tipo de Operación

1468595

Terreno

Venta

M² del terreno

Referencia

Actualizado

28002

GEA35B

2026-03-24

Ubicación

2.8м U$S

Ubicación

Asunción

Dirección

Asunción, Mariscal Lopez, Asunción, Paraguay

Acciones Adicionales

SKY ONE Cplus
+595974153241
Objeto similar
Cargando...
Operador/a de Marketplace Inmobiliario – Asuncion Estate

Buscamos Operador/a de Marketplace Inmobiliario. Trabajo remoto jornada completa.