Manorá, Avenida Aviadores Del Chaco, Asunción, Paraguay

U$S 1,000

Gs. ~7,110,000

Bathrooms

2

Garage

2

Area

65

Construction Year

2023

Category

Office

more than

4 months ago

Views

504

Alquilo Oficina Eje Corporativo Asuncion

The Top es un edificio que esta ubicado sobre la Avenida Aviadores del Chaco en el corazón del eje corporativo de Asunción y es el primer proyecto de oficinas diseñado por el afamado estudio argentino de Mario Roberto Álvarez y Asociados (MRAA) en la ciudad, lo que representa un sello de distinción y calidad.

Cada planta tiene mas de 500 metros cuadrados de espacio y están potencialmente divididas en hasta 5 diferentes tipologías de oficinas, lo que permite a propietarios y/o inquilinos una múltiple gama de opciones para diferentes tipos de requerimientos de trabajo.

Asimismo dispondrá de adecuados amenities tales como salones de reuniones y capacitación, comedor y terraza con vista panorámica a toda la ciudad posibilitando una equilibrada combinación de opciones operativas y de relax.

En relación a su ubicación, diseño, prestaciones y precio, The Top se caracteriza por plantear una excelente y flexible opción de negocios para inversores y propietarios.

OFICINAS

- 513,67 M2. Kitchenette. Baño sexado. Baño discapacitado. 10 cocheras disponibles

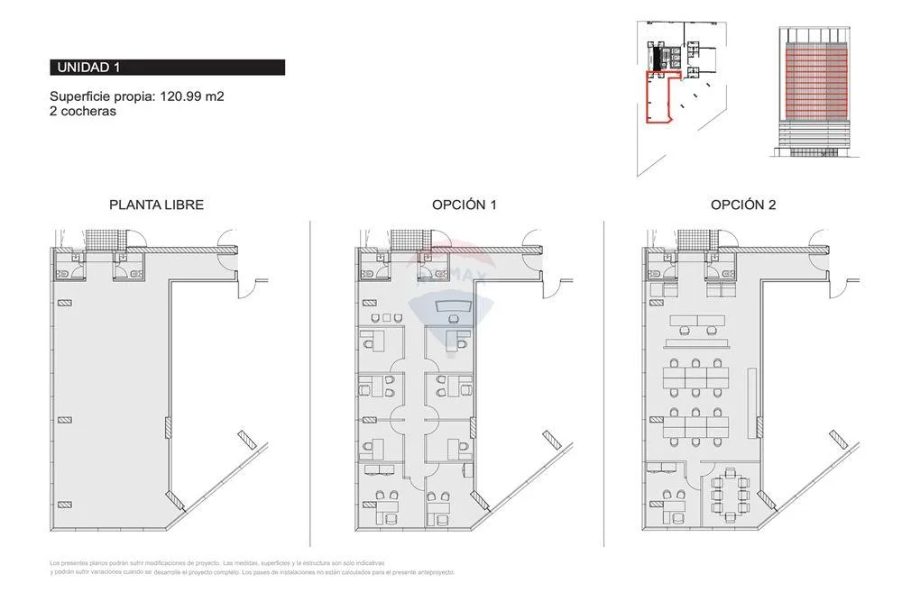
- 120,99 M2. Kitchenette. Baño sexado. 2 cocheras disponibles

- 142,17 M2. Kitchenette. Baño sexado. 3 cocheras disponibles

- 60.07 M2. Kitchenette. Baño sexado. 1 cochera disponible.

- 90,01 M2. Kitchenette. Baño sexado. 2 cocheras disponibles.

- 99.53 M2. Kitchenette. Baño sexado. 2 cocheras disponibles.

PRECIO 15 DLS. POR M2.

En el caso de esta oficina dispone de 65 metros cuadrados propios con kitchenette doble, baños sexados y dos plazas de estacionamiento.

El precio indicado es mas Ivana, y mas expensas.

Property details

ID

Category

Type

Area

Built Area

Rooms

1204782

Office

Rent

65

65

3

Bathrooms

Garage

Construction Year

Code

Updated

2

2

2023

YE16E1

2025-07-28

Location

1к U$S

Location

Asunción

Address

Manorá, Avenida Aviadores Del Chaco, Asunción, Paraguay

Amenities

Terrace

Additional Actions

Remax Fenix
098...711
595...711
Similar object
Loading...
Earn money by referring colleagues!

Invite other real estate agents and earn 10% commission for every promotion they make.