Salvador del Mundo, Juez Enrique Pino, Asunción, Paraguay

U$S 1,650

Bedrooms

3

Bathrooms

3

Garage

2

Area

14

Construction Year

2026

Category

Apartment

more than

1 week ago

Views

34

Alquilo Depto De 3 Dormitorios Salvador Del Mundo

ALQUILO DEPARTAMENTO DE 3 DORMITORIOS - SALVADOR DEL MUNDO

PARA INGRESAR EN MAYO

???? Ubicación: Juez Enrique Pino e/ Mahatma Gandhi, Barrio Salvador del Mundo

Departamentos de 3 dormitorios desde: 

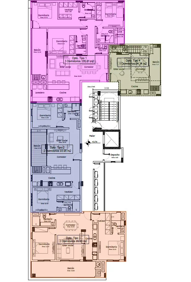
???? 135.81 m² - 1.651 usd

Cuenta con :

- Living, comedor y cocina integrados 

- ⁠3 dormitorios (principal en suite con vestidor) 

- ⁠Baño social 

- ⁠Balcón con parrilla

- ⁠2 Cocheras incluidas

???? Amenities:

-Amplia piscina

- Gimnasio equipado de primera

- 2 quinchos climatizados y equipados

- Sauna

???? Expensas incluidas

Ideal para quienes buscan amplitud, confort y excelente ubicación en la ciudad.

???? ¡Consultá para más info o agendar una visita!

Property details

ID

Category

Type

Area

Built Area

Terrace

Rooms

1465481

Apartment

Rent

14

14

12

4

Bathrooms

Bedrooms

Garage

Construction Year

Code

Updated

3

3

2

2026

I655F4

2026-03-26

Location

1.7к U$S

Location

Asunción

Address

Salvador del Mundo, Juez Enrique Pino, Asunción, Paraguay

Amenities

Barbecue Area

Terrace

Dressing Room

Elevator

Gym

Swimming Pool

Solarium

Additional Actions

Remax Conexión
+595 985 861967
Similar object
Loading...
Operador/a de Marketplace Inmobiliario – Asuncion Estate

We are looking for a Real Estate Marketplace Operator. Remote work full-time.